Tư vấn thiết kế nhà rộng 40m² cho đôi vợ chồng trẻ

Bai 4

Kiến trúc sư tư vấn

Tư vấn thiết kế với căn nhà rộng 40m² cho đôi vợ chồng trẻ với bố trí đồ nội thất sao cho hợp lý, thoáng mát và tiện nghi.

Xin chào chuyên mục,

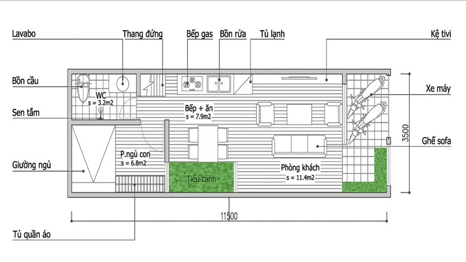
Vợ chồng em tích góp, vay mượn mua được mảnh đất 40m2, chiều rộng 3.5m, chiều sâu 11.5m. Nay bọn em muốn xây nhà cấp 4 có gác xép và 1 phòng ngủ bé ở tầng 1. Mong chuyên mục và các KTS tư vấn thiết kế giúp em xây nhà 1 cách khoa học và tiết kiệm. Chồng em sinh năm 1985 và em sinh năm 1988.

 

Kiến trúc sư tư vấn

Dựa theo những thông tin mà bạn cung cấp và yêu cầu thiết kế cho ngôi nhà, chúng tôi xin đưa ra phương án mặt bằng tư vấn để bạn tham khảo.

Theo yêu cầu của bạn là muốn có 1 phòng ngủ nhỏ ở tầng 1, vì vậy chúng tôi đưa ra phương án bố trí phòng ngủ và vệ sinh nằm ở cuối nhà. Giếng trời sẽ được đặt ở giữa căn nhà nhằm lấy sáng cho tất cả các không gian như phòng ngủ, phòng ăn hay phòng khách.

Ở tầng 1, bước vào nhà là khoảng không gian nhỏ được bố trí để xe máy. Tiếp đến là khối sinh hoạt chung gồm có phòng khách, ăn và bếp được kết hợp trong một không gian, nhà vệ sinh và phòng ngủ nhỏ được bố trí ở cuối nhà nhằm tiết kiệm diện tích.

Căn nhà được bố trí giếng trời nên mặc dù nhà rất sâu nhưng vẫn tràn ngập ánh sáng. Ở khu giếng trời bạn có thể bài trí 1 chút tiểu cảnh, giúp căn nhà gần gũi với thiên nhiên hơn.

Không gian riêng là phòng ngủ chính được bố trí trên gác lửng. Phòng được bài trí những món đồ nội thất cơ bản như giường ngủ đôi, bàn trang điểm, tủ quần áo kê sát tường và điều tuyệt vời nhất là được lấy sáng từ giếng trời giúp cho căn phòng thoáng mát và sạch sẽ.

Với đồ dùng trong nhà, bạn có thể tham khảo ở các cửa hàng nội thất để có thể mua cho gia đình những đồ dùng phù hợp với túi tiền mình.

Hy vọng với phương án bố trí này sẽ đáp ứng được tiện nghi cũng như nhu cầu sinh hoạt của bạn và gia đình. Ở trên là một số hình ảnh tham khảo giúp bạn hình dung không gian sống của mình được tốt hơn.

image
image
image
image
image
image

Chia sẻ bài viết này

Bài viết khác

Theta chụp ảnh 360 độ thiết bị chuyên dụng trong thời đại bùng nổ công nghệ số
06/10/2023 Ban nội dung

Theta chụp ảnh 360 độ thiết bị chuyên dụng trong thời đại bùng nổ công nghệ số

Theta là chiếc máy ảnh chuyên dụng 360 độ. Có khả năng chụp ảnh, quay video và live stream 360 độ. Thiết kế nhỏ gọn, đẹp mắt, cách sử dụng đơn giản. Đây là sự lựa chọn tốt cho phần lớn mọi người trong thời đại bùng nổ của nội dung 360 và VR.

Top 10 Dự Án Chung Cư Quận 2 Nên Mua Nhất
05/09/2023 Ban nội dung

Top 10 Dự Án Chung Cư Quận 2 Nên Mua Nhất

Thị trường bất động sản của khu vực phía Đông Sài Gòn, bao gồm Quận 2, Quận 9 và Thủ Đức đang được nhiều người quan tâm săn đón. Trong đó, Quận 2 là nơi tập trung của nhiều dự án căn hộ cao cấp. Mogivi đã chọn lọc ra những dự án chung cư Quận 2 đáng mua nhất ở thời điểm hiện tại nhằm giúp bạn chọn được căn hộ ưng ý. Hãy đọc ngay bài viết sau đây nhé!

Quy định liên quan đến thừa kế tài sản, đất đai
04/10/2023 Ban nội dung

Quy định liên quan đến thừa kế tài sản, đất đai

Chia sẻ về những quy định liên quan đến thừa kế đất đai, tài sản, ThS – LS Phạm Thị Bích Hảo, Giám đốc Công ty luật TNHH Đức An, Đoàn Luật sư TP Hà Nội cho biết, hiện có hai loại thừa kế, gồm thừa kế theo di chúc và thừa kế theo pháp luật.

Những điều cần biết về căn hộ Officetel
06/10/2023 Ban nội dung

Những điều cần biết về căn hộ Officetel

Officetel là loại hình căn hộ xuất hiện và nở rộ tại Việt Nam từ cuối năm 2015 và nhanh chóng gây được sự chú ý trên thị trường. Loại hình này ra đời đáp ứng nhu cầu của các doanh nghiệp mới khởi nghiệp, những công ty vừa và nhỏ. Tuy nhiên, quy định pháp luật hiện nay còn nhiều vướng mắc liên quan đến pháp lý loại hình này.

Nhà đầu tư kỳ cựu dự báo: Chung cư, nhà trong ngõ lên ngôi, đất nền tiếp tục khó khăn trong năm 2023
06/10/2023 Ban nội dung

Nhà đầu tư kỳ cựu dự báo: Chung cư, nhà trong ngõ lên ngôi, đất nền tiếp tục khó khăn trong năm 2023

Những phân khúc đánh vào nhu cầu ở thực như nhà đất trong ngõ, chung cư sẽ tiếp tục hút dòng tiền đầu tư và người mua để ở. Đất nền dự án, bất động sản nghỉ dưỡng sẽ tiếp tục gặp khó về thanh khoản trong năm 2023.

Làm chủ máy ảnh Theta360 chỉ trong vòng 30 phút
06/10/2023 Ban nội dung

Làm chủ máy ảnh Theta360 chỉ trong vòng 30 phút

Trên các máy Ricoh Theta 360, Ti Xi Ai xin giới thiệu đến các bạn một vài lưu ý để có một tấm ảnh 360 đúng chuẩn nhất và giúp bạn làm chủ máy Theta 360 chỉ sau vài lần thử nghiệm.

Quét 3D là gì? Lợi ích mang lại từ scan 3D
06/10/2023 Ban nội dung

Quét 3D là gì? Lợi ích mang lại từ scan 3D

Công nghệ quét 3D không còn quá xa lạ trong thời đại phát triển kỹ thuật số hiện nay. Công nghệ này đã được ứng dụng trong nhiều ngành nghề khác nhau, góp phần mang đến sự cải tiến, hiện đại và gia tăng năng suất trong các hoạt động sản xuất.

Metaverse - Mở Ra Kỷ Nguyên Mới Cho Bất Động Sản
21/12/2023 Ban nội dung

Metaverse - Mở Ra Kỷ Nguyên Mới Cho Bất Động Sản

Đổi tên từ Facebook thành Meta với quyết tâm xây dựng và phát triển vũ trụ ảo Metaverse. Nhà sáng lập Facebook - Mark Zuckerberg hứa hẹn sẽ mang đến cho người dùng những trải nghiệm sống chưa từng có trước đây. Vậy Metaverse là gì? Metaverse sẽ mang đến lợi ích gì cho lĩnh vực bất động sản? Cùng theo dõi bài viết sau để biết câu trả lời!

Mê mẩn vẻ đẹp hiện đại bên trong căn hộ gác mái luôn ngập tràn ánh sáng
02/01/2024 Ban nội dung

Mê mẩn vẻ đẹp hiện đại bên trong căn hộ gác mái luôn ngập tràn ánh sáng

Nếu bạn yêu thích không gian nhà ở tràn ngập ánh sáng, căn hộ gác mái với phong cách thiết kế nội thất hiện đại là một sự lựa chọn khó có thể chối từ.

Phong cách thiết kế nội thất hiện đại - Lựa chọn của người trẻ bận rộn
29/12/2023 Phong cách thiết kế nội thất hiện đại - Lựa chọn của người trẻ bận rộn

Phong cách thiết kế nội thất hiện đại - Lựa chọn của người trẻ bận rộn

Phong cách thiết kế hiện đại dần phù hợp với xu hướng thích nhanh, gọn và linh hoạt của giới trẻ ngày nay. Những bản thiết kế nội thất bằng AI của nhà MOGIVI sẽ giúp bạn hiểu rõ hơn phong cách hiện đại trong chính căn phòng của bạn.

Tin đăng trong khu vực

ZaloPhoneMessenger