
Căn hộ wabi-sabi đề cao cuộc sống tối giản, chạm đến sự tĩnh lặng của thời gian
Căn hộ thiết kế theo phong cách wabi-sabi được kiến trúc sư Nguyễn Hiếu cùng cộng sự gửi gắm vào đó rất nhiều tâm huyết và đam mê.
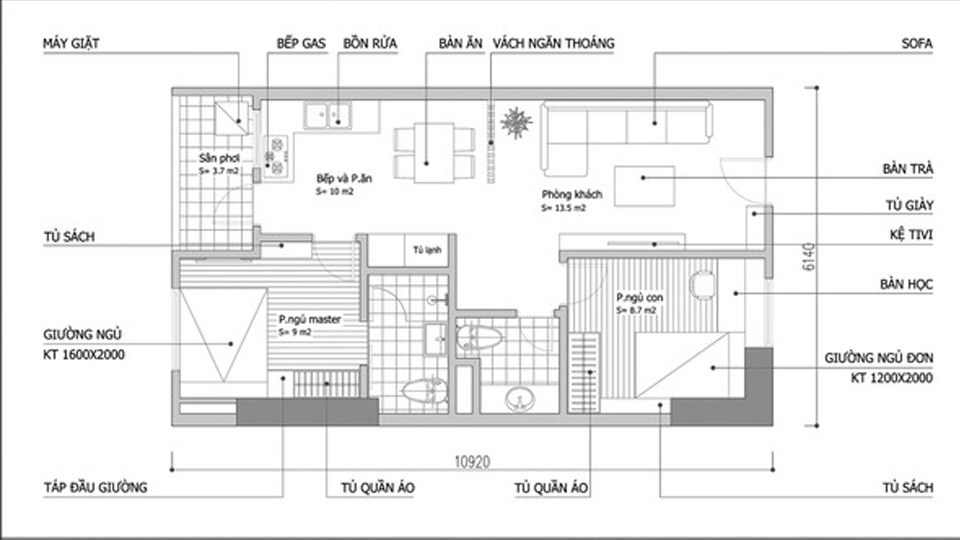
Để khắc phục một số nhược điểm của căn hộ chung cư, KTS đã đưa ra những phương án bố trí nội thất khiến căn hộ trở nên hiện đại, tiện nghi và sang trọng.
Gia đình tôi có mua căn hộ chung cư 67,04m². Nhờ chuyên mục tư vấn phần nội thất phòng khách, nội thất bếp, nội thất trần thạch cao, nội thất phòng ngủ. Theo như bản vẽ, việc bố trí phòng khách theo chiều rộng khiến cho phòng khách có vẻ bị bé. Xin các KTS ý kiến giúp gia đình bố trí nội thất lại cho hợp lý.
Gia đình xin cảm ơn!
Dựa theo những thông tin mà bạn cung cấp và yêu cầu thiết kế cho ngôi nhà, chúng tôi xin đưa ra phương án mặt bằng tư vấn để bạn tham khảo.
Theo như mặt bằng hiện trạng ban đầu thì các không gian trong căn hộ nhà bạn đã được ngăn chia khá hợp lý, tuy nhiên vẫn còn có 1 số chỗ cần phải khắc phục để căn hộ được hoàn hảo hơn.
Dựa trên yêu cầu của bạn đưa ra là muốn sắp xếp đồ nội thất hợp lý, khoa học để các không gian trong căn hộ thực sự thoải mái, rộng rãi, thoáng mát, vì vậy chúng tôi đưa ra phương án là cơi nới phòng ngủ master rộng ra 1 chút để phù hợp với cách bố trí nội thất ở phòng bếp và ăn.
Hệ trần thạch cao với họa tiết đơn giản, kết hợp với đó là những chiếc đèn chùm xinh xắn sẽ giúp phòng khách thêm sinh động.
Với cách cải tạo như vậy thì không gian vệ sinh cũng được mở rộng thêm, nhằm đáp ứng nhu cầu cá nhân. Phòng khách sẽ được sử dụng ghế sofa dài, gọn hình chữ L giúp tiết kiệm diện tích.
Không gian sinh hoạt chung gồm có phòng khách, bếp và ăn. Với diện tích không gian phòng khách nhỏ, bạn nên sử dụng bộ bàn ghế sofa màu trắng, tạo điểm nhấn bởi những chậu cây cảnh xanh mát sẽ giúp cho phòng khách thêm sinh động và bắt mắt hơn.
Sử dụng vách ngăn nhẹ để ngăn chia phòng khách và ăn sẽ giúp cho không gian sinh hoạt chung thêm độc đáo và thẩm mỹ. Đồ nội thất được sắp xếp về cùng 1 phía, tạo không gian rộng rãi, lối giao thông mạch lạc, đi lại dễ dàng hơn.
Không gian bếp và ăn được bố trí gần cửa sổ giúp việc lưu thông không khí được tốt hơn. Phòng bếp cũng nên sử dụng những đồ nội thất sáng màu giúp cho không gian gọn gàng và sạch sẽ.
Căn bếp nhỏ gọn không đủ để bố trí tủ lạnh nên KTS phải tính cho bạn một giải pháp khác cho tủ lạnh và khoang chứa đồ đó là mở rộng nhà vệ sinh cạnh phòng ngủ master, bố trí cửa ra vào cho phòng ngủ đó hướng ra khu vực bếp, cách chuyển đổi như vậy sẽ giúp cho không gian sinh hoạt tiện lợi và thiết yếu hơn.
Không gian sinh hoạt riêng gồm có phòng ngủ master và phòng ngủ dành cho con. Phòng ngủ master tràn ngập ánh sáng được sử dụng những đồ nội thất cơ bản như giường ngủ đôi, tủ quần áo, kệ ti vi, bạn cũng có thể sử dụng những đồ decor độc đáo, thú vị để phòng ngủ thêm mới lạ và tinh tế hơn.
Phòng ngủ con cũng được sử dụng những đồ nội thất cơ bản như giường ngủ đơn, tủ quần áo, tủ sách, bàn học được ưu tiên hướng ra phía cửa sổ để tiếp cận với ánh sáng.
Hy vọng với phương án bố trí này sẽ đáp ứng được tiện nghi cũng như nhu cầu sinh hoạt của bạn và gia đình.







Căn hộ thiết kế theo phong cách wabi-sabi được kiến trúc sư Nguyễn Hiếu cùng cộng sự gửi gắm vào đó rất nhiều tâm huyết và đam mê.

UBND TP Hà Nội sửa đổi Điều 12 (hồ sơ, trình tự, thủ tục cấp giấy chứng nhận lần đầu cho hộ gia đình, cá nhân, cộng đồng dân cư đang sử dụng đất) của Quyết định số 12/2017, ngày 31/3/2017 của UBND thành phố.

Với 1,5-1,8 tỷ đồng, người dân chỉ mua được căn hộ cũ, phổ biến loại một phòng ngủ, một phòng tắm, khó với tới chung cư mới.

Chỉ trong tay vài trăm triệu đồng ban đầu, tích cóp, vay mượn mua căn hộ nhỏ hơn 54m2 rồi đến căn hộ 100m2, vợ chồng trẻ 9X đều không phải ngân hàng một đồng nào nên đỡ được áp lực trả lãi. Cùng xem họ chia sẻ về nỗ lực mua nhà

Căn hộ có giá 500 triệu đồng ở các thành phố lớn không phải là không có. Cụ thể, đó là các căn hộ nhà ở xã hội có diện tích nhỏ.

Cách lựa chọn và sử dụng màu sắc khéo léo đã mang đến một không gian sống lý tưởng bên trong căn hộ nhỏ.

Nếu bạn đang tìm kiếm lối trang trí dễ dàng và tiết kiệm cho nhà bếp thì dùng giấy dán tường là một lựa chọn hàng đầu.

Chỉ với 52m², mọi nội thất trong căn hộ được tối giản hóa cả về màu sắc và kiểu dáng. Nét độc đáo và ấn tượng được tạo nên từ những khoảng giật cấp vô cùng thông minh.

Bạn hoàn toàn có thể tự tay trang trí những bức tường để trống trong nhà với những gợi ý thú vị bên dưới.

Để khắc phục một số nhược điểm của căn hộ chung cư, KTS đã đưa ra những phương án bố trí nội thất khiến căn hộ trở nên hiện đại, tiện nghi và sang trọng.
Vui lòng nhấn vào chế độ VR Tour - Chọn AI Design để trải nghiệm không gian nội thất đã cải tạo
