Khánh Hội 2




- Tổng quan
- Vị trí
- Tài liệu
- Căn hộ trong khu vực
- Dự án lân cận
Đã bàn giao
Căn hộ chung cư, văn phòng
18 tầng
Công ty Cổ phần Đầu tư và Dịch vụ Khánh Hội (KHAHOMEX)
02 block
260 căn
3.414,7 m2
Từ 37 - 61 triệu/m2
Giới thiệu Khánh Hội 2
Tổng quan dự án chung cư Khánh Hội 2 (Khahomex Tower)
- Tên dự án: Chung cư Khánh Hội 2
- Vị trí: Số 360A Bến Vân Đồn, Phường 1, Quận 4, TP. Hồ Chí Minh
- Chủ đầu tư: Công ty Cổ phần Đầu tư và Dịch vụ Khánh Hội (KHAHOMEX)
- Tổng diện tích: 3.414,7 m²
- Loại hình sản phẩm: Căn hộ chung cư và văn phòng cho thuê
- Quy mô: Gồm 1 block cao 18 tầng (bao gồm trệt, lửng) và 1 tầng hầm
- Số lượng sản phẩm: 260 căn hộ và khoảng 2.000 m² sàn văn phòng
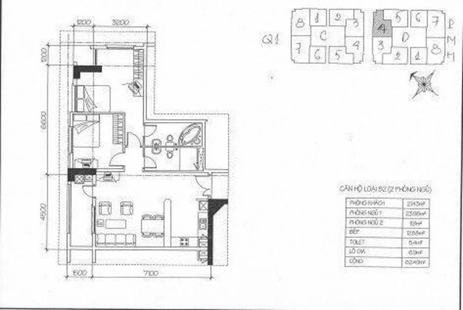
- Diện tích căn hộ: Từ 56m² đến 100m² (các loại căn 2-3 phòng ngủ)
- Thời gian bàn giao: Năm 2009
- Pháp lý: Sổ hồng lâu dài
Vị trí dự án chung cư Khánh Hội 2
Dự án tọa lạc tại số 360A Bến Vân Đồn, Phường 1, Quận 4, nằm trong khu vực dân cư sầm uất với hạ tầng giao thông đồng bộ.
- Kết nối vùng cực nhanh: Chỉ mất khoảng 5-10 phút để di chuyển sang Trung tâm Quận 1 qua cầu Nguyễn Văn Cừ hoặc cầu Calmette.
- Giao điểm huyết mạch: Dễ dàng kết nối với Quận 5, Quận 7 (Phú Mỹ Hưng) và Quận 8 thông qua các trục đường lớn như Bến Vân Đồn, Khánh Hội và Hoàng Diệu.
- Tầm nhìn đẹp: Nhiều căn hộ sở hữu view trực diện sông Bến Nghé và trung tâm thành phố lung linh về đêm.
Tiện ích dự án chung cư Khánh Hội 2
Cư dân Khánh Hội 2 được hưởng lợi từ hệ thống tiện ích nội khu ổn định và tiện ích ngoại khu phong phú của khu trung tâm:
- Tiện ích nội khu: 1 tầng hầm đỗ xe, hệ thống thang máy tốc độ cao, khu vực văn phòng chuyên nghiệp tại các tầng dưới, hệ thống an ninh và PCCC tiêu chuẩn.
- Tiện ích ngoại khu:
- Giáo dục & Y tế: Gần trường tiểu học Vĩnh Hội, THCS Vân Đồn, Đại học Luật, Đại học Nguyễn Tất Thành và Bệnh viện Quận 4.
- Môi trường sống: Sát cạnh công viên Khánh Hội (lá phổi xanh của Quận 4) với các khu vui chơi, sân tập thể dục và hồ bơi.
- Mua sắm & Giải trí: Gần chợ Xóm Chiếu, siêu thị Lotte Mart Quận 7, khu phức hợp The GoldView với rạp chiếu phim và trung tâm thương mại cao cấp.
Thiết kế & mặt bằng chung cư Khánh Hội 2
Dự án được thiết kế theo phong cách hiện đại, ưu tiên sự thông thoáng cho các căn hộ.
- Mặt bằng tầng: Khối đế dành cho văn phòng và thương mại, các tầng trên là khu căn hộ ở.
- Diện tích đa dạng:
- Căn 2PN: Diện tích từ 56m² - 75m², phù hợp cho gia đình trẻ.
- Căn 3PN: Diện tích từ 80m² - 100m², không gian rộng rãi cho gia đình nhiều thế hệ.
49%
Căn hộ chung cư và Văn phòng cho thuê.
2 block
Từ 56m² đến 100m²
2009
- Chỗ đậu xe
- Hồ bơi
- Công viên
- Thang máy
- Phòng sinh hoạt cộng đồng
- Bảo vệ 24/7
- Trung tâm thương mại
- Phòng tập gym
- Sân chơi trẻ em

Khánh Hội 2
Đã bàn giao
02
260 căn

Công ty Cổ phần Đầu Tư và Dịch Vụ Khánh Hội - KHAHOMEX
GIỚI THIỆU
Công ty Cổ phần Đầu Tư và Dịch Vụ Khánh Hội - KHAHOMEX là Công ty hoạt động đa ngành nghề theo Giấy phép kinh doanh, song hiện nay, Công ty chỉ đang tập trung chuyên sâu vào lĩnh vực kinh doanh và dịch vụ bất động sản (đầu tư kinh doanh căn hộ chung cư, khu dân cư, cao ốc văn phòng cho thuê, căn hộ dịch vụ), dịch vụ thương mại và giáo dục mầm non. Các lĩnh vực khác sẽ được triển khai khi có điều kiện cho phép (như hoạt động du lịch, khách sạn, v.v…)
Chủ đầu tư KHAHOMEX có uy tín không? Với thế mạnh trong đầu tư kinh doanh bất động sản, KHAHOMEX đã triển khai thành công nhiều dự án mang lại giá trị sống đích thực, nâng cao đời sống cộng đồng dân cư theo xu hướng đô thị hóa của thành phố, tiêu biểu là các dự án trên địa bàn phường 1, Quận 4 như: dự án Chung cư Khánh Hội 1 (2005), Khahomex Building - 2009 (Chung cư Khánh Hội 2) và gần đây nhất là Chung cư Khánh Hội 3 - 2011.
Trong thời gian tới, KHAHOMEX sẽ tiếp tục hợp tác với các đối tác chiến lược để triển khai nhiều dự án tiềm năng khác phục vụ cho khách hàng và cộng đồng như: Dự án căn hộ cao cấp ICON 56 (hợp tác cùng đối tác NOVALAND), dự án trung tâm thương mai dịch vụ và văn phòng KHAHOMEX PLAZA (giai đoạn I là RIVERSIDE PALACE), dự án Chung cư Cảng Sài Gòn (hợp tác với Cảng Sài Gòn), dự án Nhà máy chế biến thực phẩm Hóc Môn,…
KHAHOMEX đã và đang thực hiện những dự án nào?
Khahomex Building - 2009 (Chung cư Khánh Hội 2)
Chung cư Khánh Hội 1
Chung cư Khánh Hội
KHAHOMEX PLAZA
CHUNG CƯ TRÚC GIANG
C&K BUILDING
Quận 4
Giá:
Liên hệ để nhận tư vấn
- Trạng thái:
Đã bàn giao
- Chủ đầu tư:
Công ty Cổ phần Đầu tư và Dịch vụ Khánh Hội (KHAHOMEX)
- Loại hình:
Căn hộ chung cư, văn phòng
360A Bến Vân Đồn, Phường 1, Quận 4, Thành phố Hồ Chí Minh

Pháp lý
Dự án lân cận




























